Property
Beds
4
Full Baths
3
1/2 Baths
1
Year Built
1999
Sq.Footage
4,770
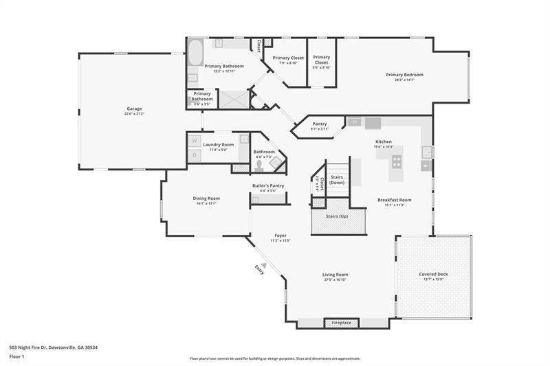
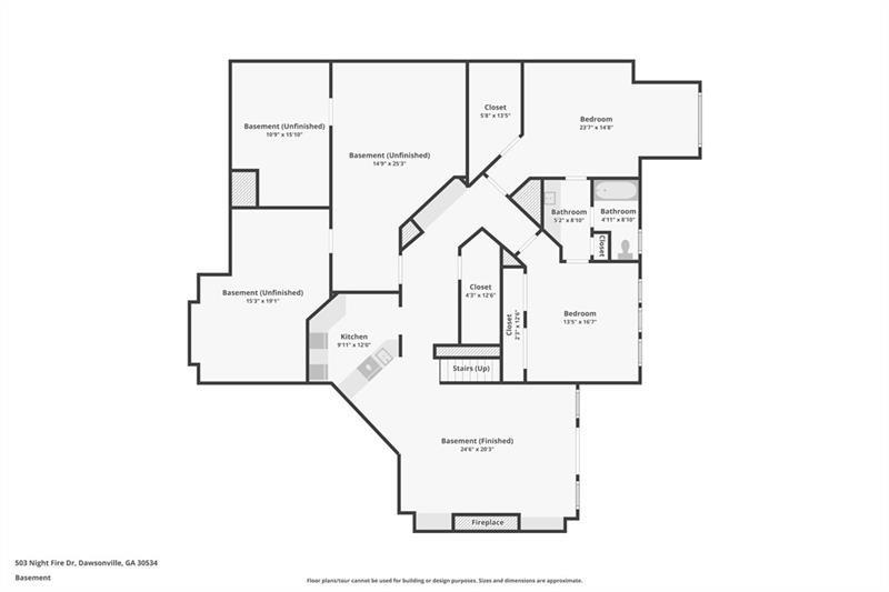
Welcome home to this charming Craftsman-style home in the coveted Chestatee Golf and Lake community! Nestled at the end of the long driveway, this elegant home has breathtaking views of the golf course. A large front porch welcomes you into the living room with a stunning fireplace and built in bookcases on both sides. French doors open to your covered porch where you can enjoy your morning coffee overlooking the 14th fairway. The separate dining room features a butler's pantry and will seat up to 12 with ease. Beautiful cabinetry and a large kitchen island with new cooktop is open to the breakfast area and living room with cathedral ceiling. A walk-in pantry gives you all the space you need and a double oven makes it easy for those large family dinners. The oversized master suite has a sitting room with fabulous views as well and boasts his and hers separate closets. The newly renovated master bath has separate vanities, a jacuzzi tub and a tiled shower with frameless glass. The laundry room is conveniently located down the hall with cabinetry and large sink. Upstairs you'll find a huge bonus/bedroom with full bath and an adjoining flex room with endless possibilities. The open stair case leads you to a terrace level family room overlooking the fairway and open to the bar, complete with a dishwasher and wine cooler. 2 more guest bedrooms with a Jack and Jill bath gives your family and friends all the privacy and space they need. Tons of storage complete the lower level. Most windows have been replaced as well as all of the HVAC units and water heater. Don't miss this opportunity to live in the best kept secret in all of N. Georgia! Chestatee has an abundance of amenities, activities and clubs. A Jr. Olympic sized swimming pool with splashpad, 3 level lodge, a lakeside pavilion, 3 sets of tennis courts, basketball, pickleball, bocce, hiking, boating, golfing and social clubs galore! Close to shopping, restaurants, a slew of wineries and the beautiful N. Georgia mountains.
Features & Amenities
Interior
-
Other Interior Features
Pantry, Kitchen Island, Bookcases, Cathedral Ceiling(s), Double Vanity, High Speed Internet, His and Hers Closets, Tray Ceiling(s), Vaulted Ceiling(s), Walk-In Closet(s), Wet Bar, Master Downstairs
-
Total Bedrooms
4
-
Bathrooms
3
-
1/2 Bathrooms
1
-
Above Grade Finished Area
3062.0
-
Basement YN
YES
-
Cooling YN
YES
-
Cooling
Ceiling Fan(s), Central Air, Zoned
-
Fireplace YN
YES
-
Heating YN
YES
-
Heating
Central, Forced Air, Natural Gas, Zoned
-
Main Level Bedrooms
1
-
Pet friendly
N/A
Exterior
-
Garage
Yes
-
Garage spaces
2
-
Construction Materials
HardiPlank Type, Stone
-
Other Exterior Features
Private Entrance, Private Yard, Rain Gutters
-
Parking
Garage, Garage Door Opener, Garage Faces Front, Kitchen Level, Driveway
-
Patio and Porch Features
Covered, Front Porch, Patio, Rear Porch
-
Pool
Yes
-
Pool Features
None
-
View
Golf Course
Area & Lot
-
Lot Features
Front Yard, Landscaped, Private
-
Lot Size(acres)
0.37
-
Property Type
Residential
-
Property Sub Type
Single Family Residence
-
Architectural Style
Craftsman
Price
-
Sales Price
$874,900
-
Tax Amount
1388.0
-
Sq. Footage
4, 770
-
Price/SqFt
$183
HOA
-
Association
YES
-
Association Fee
$1,975
-
Association Fee Frequency
Annually
-
Association Fee Includes
N/A
School District
-
Elementary School
Kilough
-
Middle School
Dawson County
-
High School
Dawson County
Property Features
-
Stories
1
-
Accessibility Features
Therapeutic Whirlpool
-
Foundation Details
Concrete Perimeter
-
Sewer
Other
-
Tax Lot
4
-
Water Source
Public
Schedule a Showing
Showing scheduled successfully.
Mortgage calculator
Estimate your monthly mortgage payment, including the principal and interest, property taxes, and HOA. Adjust the values to generate a more accurate rate.
Your payment
Principal and Interest:
$
Property taxes:
$
HOA fees:
$
Total loan payment:
$
Total interest amount:
$
Location
County
Dawson
Elementary School
Kilough
Middle School
Dawson County
High School
Dawson County
Listing Courtesy of Shari Paglio , Century 21 Results
RealHub Information is provided exclusively for consumers' personal, non-commercial use, and it may not be used for any purpose other than to identify prospective properties consumers may be interested in purchasing. All information deemed reliable but not guaranteed and should be independently verified. All properties are subject to prior sale, change or withdrawal. RealHub website owner shall not be responsible for any typographical errors, misinformation, misprints and shall be held totally harmless.

FOUNDER
GeorgiaSandbox
Call Georgia today to schedule a private showing.

* Listings on this website come from the FMLS IDX Compilation and may be held by brokerage firms other than the owner of this website. The listing brokerage is identified in any listing details. Information is deemed reliable but is not guaranteed. If you believe any FMLS listing contains material that infringes your copyrighted work please click here to review our DMCA policy and learn how to submit a takedown request.© 2024 FMLS.
