Property
Beds
3
Full Baths
2
1/2 Baths
None
Year Built
1978
Sq.Footage
N/A
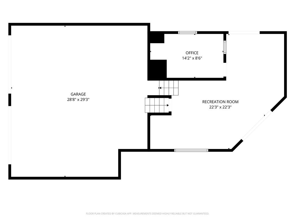
Located in the desirable Pope High School district, you will find this updated and well maintained, 3 bed/2 bath home with a large basement. True pride of ownership as the seller has completely replaced all of the cedar siding with wonderful hardie-plank. Inside, you will find high ceilings, lvp flooring throughout the dining and living areas and all of the bedrooms. The charming cottage kitchen features refinished wood cabinets, bead board wainscoting, a 5 burner SS gas range, high ceilings, and lvp flooring. The master has an updated bathroom and beautiful stained-glass windows with soring ceilings. The two additional bedrooms upstairs share a bathroom with plenty of countertop space. All of the interior doors, including the front door, have been replaced. The water heater was replaced last year as well. -----The large, open terrace level contains an office and is recently primed neutral, so you can paint it whatever color you would like. Two back decks (one is brand new) with built in seating and ample room for grilling or relaxing. The backyard has a firepit, perfect for fall weather, and is wooded and private. There is a great spot for basketball in the driveway, and the house sits at a cul-de-sac for extra parking. The neighborhood is transitioning and has a lot of upscale renovations going on throughout. Excellent location close to shopping, great schools, and many dining options. 15 min to DT Marietta or to DT Roswell, where some of the best night life and restaurants are located.
Features & Amenities
Interior
-
Other Interior Features
Pantry, Entrance Foyer, High Speed Internet
-
Total Bedrooms
3
-
Bathrooms
2
-
Basement YN
YES
-
Cooling YN
YES
-
Cooling
Ceiling Fan(s), Central Air
-
Fireplace YN
YES
-
Heating YN
YES
-
Heating
Central, Natural Gas
-
Pet friendly
N/A
Exterior
-
Garage
Yes
-
Garage spaces
2
-
Construction Materials
Cement Siding
-
Other Exterior Features
Private Yard
-
Parking
Attached, Driveway, Garage, Garage Door Opener, Garage Faces Side
-
Patio and Porch Features
Deck, Rear Porch, Side Porch
-
Pool
Yes
-
Pool Features
None
-
View
Creek/Stream, Trees/Woods
Area & Lot
-
Lot Features
Back Yard, Cul-De-Sac, Private
-
Lot Size(acres)
0.2516
-
Property Type
Residential
-
Property Sub Type
Single Family Residence
-
Architectural Style
Contemporary
Price
-
Sales Price
$459,000
-
Tax Amount
785.0
-
Sq. Footage
N/A
-
Price/SqFt
N/A
HOA
-
Association
NO
School District
-
Elementary School
Murdock
-
Middle School
Dodgen
-
High School
Walton
Property Features
-
Foundation Details
Slab
-
Sewer
Public Sewer
-
Water Source
Public
Schedule a Showing
Showing scheduled successfully.
Mortgage calculator
Estimate your monthly mortgage payment, including the principal and interest, property taxes, and HOA. Adjust the values to generate a more accurate rate.
Your payment
Principal and Interest:
$
Property taxes:
$
HOA fees:
$
Total loan payment:
$
Total interest amount:
$
Location
County
Cobb
Elementary School
Murdock
Middle School
Dodgen
High School
Walton
Listing Courtesy of COLMAN BIASETTI , Drake Realty of GA, Inc.
RealHub Information is provided exclusively for consumers' personal, non-commercial use, and it may not be used for any purpose other than to identify prospective properties consumers may be interested in purchasing. All information deemed reliable but not guaranteed and should be independently verified. All properties are subject to prior sale, change or withdrawal. RealHub website owner shall not be responsible for any typographical errors, misinformation, misprints and shall be held totally harmless.

FOUNDER
GeorgiaSandbox
Call Georgia today to schedule a private showing.

* Listings on this website come from the FMLS IDX Compilation and may be held by brokerage firms other than the owner of this website. The listing brokerage is identified in any listing details. Information is deemed reliable but is not guaranteed. If you believe any FMLS listing contains material that infringes your copyrighted work please click here to review our DMCA policy and learn how to submit a takedown request.© 2024 FMLS.
