Property
Beds
4
Full Baths
5
1/2 Baths
1
Year Built
1980
Sq.Footage
4,480
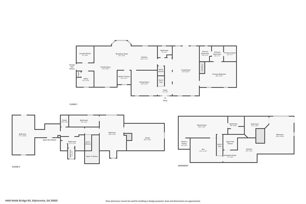
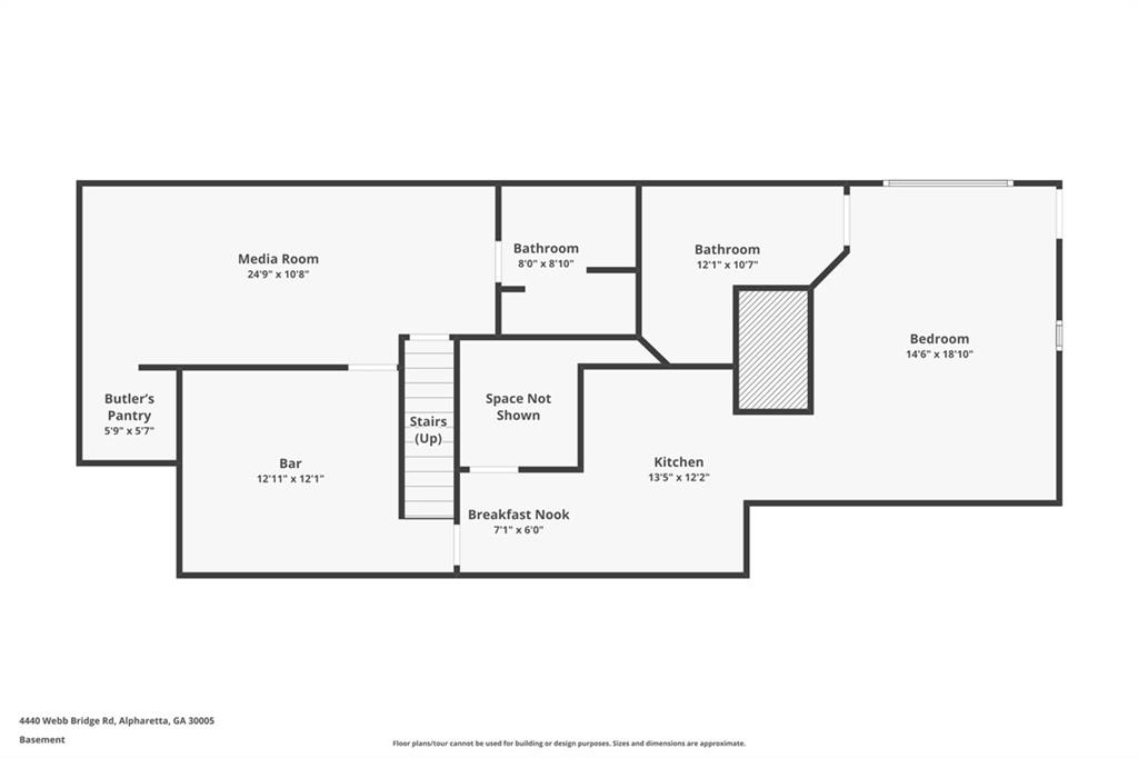
Welcome to an EXTRAORDINARY PRIVATE RESORT STYLE RESIDENCE in the heart of Alpharetta. An impeccably TWO STORY RANCH estate resting on MORE THAN TWO FULLY FENCED AND GATED ACRES. Recently transformed with seven figure improvements, this residence offers the epitome of refined living with every detail designed for comfort, style, and peace of mind. From the NEW ROOF, septic system, HVAC units, windows, and dual hot water tanks, to the exquisite finishes throughout, no detail has been overlooked. A breezeway connects to the three-car carriage-style garage, while the inviting rocking chair front porch with dual ceiling fans sets the tone for relaxed elegance. The property itself is a sanctuary, complete with landscape lighting, seasonal foliage, and a wooded backdrop that frames the heated pool, spa, and professional-grade lighted tennis and pickleball courts. RATED FOR PROFESSIONAL PLAY! Inside, the home’s thoughtful in-law floor plan offers remarkable flexibility, with a primary suite on the main level and an additional primary upstairs. Perfect for guests or multi-generational living. Each bedroom is a private en-suite featuring spa-inspired baths, including one with a striking concrete free-standing soaking tub. The main level boasts a family room anchored by a floor-to-ceiling brick fireplace with direct access to the expansive deck, a formal dining room, and a chic butler’s pantry with sink. The eat-in kitchen is a showpiece of design with stainless steel appliances, vent hood, glass subway tile backsplash, floating shelves, and a charming dining nook overlooking the pool and patio. A laundry room, half bath, and built-in desk/workspace room complete the main level with ease. The FINISHED TERRACE LEVEL expands the living space, offering another bedroom, bonus rooms, two spa-like baths, and even a SECOND KITCHEN ideal for entertaining or extended stays. The seamless indoor-outdoor flow of this home is unparalleled, blending sophistication with functionality at every turn. Minutes from Avalon, Downtown Alpharetta, the Greenway, premier golf courses, healthcare, award-winning schools, and year-round dining and entertainment. This estate is more than a home, it’s a lifestyle. Prepare to be wowed by a residence where luxury meets everyday living!
Features & Amenities
Interior
-
Other Interior Features
Breakfast Bar, Eat-in Kitchen, Pantry, Crown Molding, Double Vanity, Dry Bar, His and Hers Closets, Recessed Lighting, Vaulted Ceiling(s), Walk-In Closet(s), Wet Bar, Other
-
Total Bedrooms
4
-
Bathrooms
5
-
1/2 Bathrooms
1
-
Above Grade Finished Area
3130.0
-
Basement YN
YES
-
Cooling YN
YES
-
Cooling
Ceiling Fan(s), Central Air, ENERGY STAR Qualified Equipment, Zoned
-
Fireplace YN
YES
-
Heating YN
YES
-
Heating
Forced Air, Natural Gas, Zoned
-
Main Level Bedrooms
1
-
Pet friendly
N/A
Exterior
-
Garage
Yes
-
Garage spaces
3
-
Construction Materials
Cement Siding
-
Other Exterior Features
Balcony, Lighting, Permeable Paving, Tennis Court(s)
-
Parking
Attached, Driveway, Garage, Garage Door Opener, Garage Faces Front, Kitchen Level
-
Patio and Porch Features
Covered, Deck, Front Porch, Patio, Terrace
-
Pool
Yes
-
Pool Features
Heated, In Ground, Pool/Spa Combo, Private, Waterfall
-
View
Pool, Trees/Woods
Area & Lot
-
Lot Features
Back Yard, Front Yard, Landscaped, Level, Private
-
Lot Size(acres)
2.22
-
Property Type
Residential
-
Property Sub Type
Single Family Residence
-
Architectural Style
Ranch
Price
-
Sales Price
$2,499,000
-
Tax Amount
6401.0
-
Sq. Footage
4, 480
-
Price/SqFt
$557
HOA
-
Association
NO
School District
-
Elementary School
Lake Windward
-
Middle School
Webb Bridge
-
High School
Alpharetta
Property Features
-
Stories
2
-
Foundation Details
Concrete Perimeter
-
Sewer
Septic Tank
-
Water Source
Public
Schedule a Showing
Showing scheduled successfully.
Mortgage calculator
Estimate your monthly mortgage payment, including the principal and interest, property taxes, and HOA. Adjust the values to generate a more accurate rate.
Your payment
Principal and Interest:
$
Property taxes:
$
HOA fees:
$
Total loan payment:
$
Total interest amount:
$
Location
County
Fulton
Elementary School
Lake Windward
Middle School
Webb Bridge
High School
Alpharetta
Listing Courtesy of TERRY L SWANSON , Century 21 Results
RealHub Information is provided exclusively for consumers' personal, non-commercial use, and it may not be used for any purpose other than to identify prospective properties consumers may be interested in purchasing. All information deemed reliable but not guaranteed and should be independently verified. All properties are subject to prior sale, change or withdrawal. RealHub website owner shall not be responsible for any typographical errors, misinformation, misprints and shall be held totally harmless.

FOUNDER
GeorgiaSandbox
Call Georgia today to schedule a private showing.

* Listings on this website come from the FMLS IDX Compilation and may be held by brokerage firms other than the owner of this website. The listing brokerage is identified in any listing details. Information is deemed reliable but is not guaranteed. If you believe any FMLS listing contains material that infringes your copyrighted work please click here to review our DMCA policy and learn how to submit a takedown request.© 2024 FMLS.
