Features & Amenities

Interior

  • Other Interior Features

    Breakfast Bar, Eat-in Kitchen, Pantry, Kitchen Island, Beamed Ceilings, Crown Molding, Entrance Foyer, Tray Ceiling(s), Walk-In Closet(s), Master Downstairs

  • Total Bedrooms

    3

  • Bathrooms

    3

  • Above Grade Finished Area

    2349.0

  • Basement YN

    NO

  • Cooling YN

    YES

  • Cooling

    Ceiling Fan(s), Central Air, Zoned

  • Fireplace YN

    YES

  • Heating YN

    YES

  • Heating

    Central, Forced Air, Hot Water, Natural Gas

  • Main Level Bedrooms

    2

  • Pet friendly

    N/A

Exterior

  • Garage

    Yes

  • Garage spaces

    2

  • Construction Materials

    Cement Siding

  • Other Exterior Features

    Private Entrance, Private Yard, Storage

  • Parking

    Driveway, Garage, Garage Door Opener, Garage Faces Rear, On Street

  • Patio and Porch Features

    Covered, Enclosed, Front Porch, Patio, Rear Porch, Screened

  • Pool

    Yes

  • Pool Features

    None

  • View

    Neighborhood

Area & Lot

  • Lot Features

    Back Yard, Corner Lot, Landscaped, Level

  • Lot Size(acres)

    0.052

  • Property Type

    Residential

  • Property Sub Type

    Single Family Residence

  • Architectural Style

    Cottage, Craftsman

Price

  • Sales Price

    $499,900

  • Tax Amount

    1609.0

  • Sq. Footage

    2, 349

  • Price/SqFt

    $212

HOA

  • Association

    Yes

  • Association Fee

    $210

  • Association Fee Frequency

    Monthly

  • Association Fee Includes

    N/A

School District

  • Elementary School

    Hollydale

  • Middle School

    Smitha

  • High School

    Osborne

Property Features

  • Stories

    2

  • Foundation Details

    Slab

  • Senior Community YN

    YES

  • Sewer

    Public Sewer

  • Tax Lot

    43

  • Water Source

    Public

Schedule a Showing

Showing scheduled successfully.

<
>
IN PERSON
VIA CHAT

What is 3 + 4 ?


Change time

Mortgage calculator

Estimate your monthly mortgage payment, including the principal and interest, property taxes, and HOA. Adjust the values to generate a more accurate rate.

Your payment

Principal and Interest:

$

Property taxes:

$

HOA fees:

$

Total loan payment:

$

Total interest amount:

$

Location

County

Cobb

Elementary School

Hollydale

Middle School

Smitha

High School

Osborne

Listing Courtesy of Makaila Parson , Atlanta Communities

RealHub Information is provided exclusively for consumers' personal, non-commercial use, and it may not be used for any purpose other than to identify prospective properties consumers may be interested in purchasing. All information deemed reliable but not guaranteed and should be independently verified. All properties are subject to prior sale, change or withdrawal. RealHub website owner shall not be responsible for any typographical errors, misinformation, misprints and shall be held totally harmless.

Agent Georgia Sandbox

FOUNDER

Georgia Sandbox

Call Georgia today to schedule a private showing.


* Listings on this website come from the FMLS IDX Compilation and may be held by brokerage firms other than the owner of this website. The listing brokerage is identified in any listing details. Information is deemed reliable but is not guaranteed. If you believe any FMLS listing contains material that infringes your copyrighted work please click here to review our DMCA policy and learn how to submit a takedown request.© 2024 FMLS.
Welcome to Reserve at Marietta—A PREMIER 55+ ACTIVE ADULT GATED Neighborhood Near Marietta Square

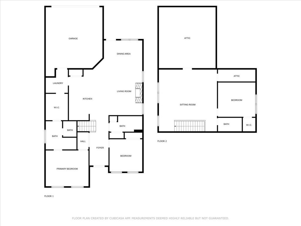
Step into laid-back luxury and convenience in this like-new, LOW-MAINTENANCE home offering 3 bedrooms and 3 full baths. Designed with comfort and easy living in mind, the main level features an owner’s suite with wood-beam accents, a spa-inspired bathroom, an oversized walk-in shower, double granite vanities, and a spacious walk-in closet. Upstairs, a private guest suite with en suite bath and an additional bedroom with full bath create versatile living spaces. The FINISHED FLEX SPACE comes fully equipped, complete with the included POOL TABLE, unlike many other homes in the community.
Enjoy year-round relaxation in the SUN PORCH or entertain effortlessly with an open-concept layout and two-car garage.
This home also comes with low-maintenance perks: lawn care included, plus a vibrant community lifestyle with a clubhouse, outdoor seating areas, guest parking, and organized social events.
FURNISHINGS can remain with an acceptable offer, making this truly turnkey. Conveniently located near MARIETTA SQUARE, SILVER COMET TRAIL, shopping, and medical facilities, this is more than just a home, it’s a lifestyle.

3047 Patriot Square SW

Message successfully sent.

What would you like to know?

What is 3 + 4 ?

Related Properties

Located in the heart of Marietta, this charming brick front property blends comfort, convenience, and inviting spaces throughout. Natural light fills the main level, showcasing an open layout with plenty of room for both everyday living and effortless entertaining. The heart of the home is the kitchen, flowing seamlessly into the living and dining areas with beautiful hardwood floors and a cozy fireplace.   A large back deck extends your living space outdoors, offering a private spot for morning coffee, outdoor dining, or hosting friends.  Upstairs, the primary suite is your personal sanctuary. Bright and inviting, it offers plenty of room to unwind, a walk-in closet to keep life organized, and a spacious bathroom with his-and-hers vanities, a large shower, and a soaking tub. An additional bedrooms and a full bath complete the upper level, along with a laundry area that makes everyday life effortless.  The lower level provides flexibility to fit your lifestyle. A third bedroom with a full bath and exterior access is perfect for guests, a home office, a gym, or a playroom.  All of this is just minutes from Marietta Square, where dining, shopping, festivals, and community events are at your doorstep, with easy access to schools, trails, and major highways.  477 Williamson Street is more than a townhouse. It's a place where comfort meets convenience, and every space feels like home. Come see it and imagine your next chapter beginning here.
#10644127

Marietta

477 Williamson ST SE

3 Beds

3 Baths

2,332 Sq.Ft.

$420,000

MLS#: 10644127

Nestled within the City Limits of Marietta, this meticulously crafted custom home offers an exceptional living experience. Situated on a private one-acre lot, it provides both tranquility and space for outdoor enjoyment. The quality craftsmanship is evident throughout, with recent upgrades including a new roof, gutters, and a newer HVAC system. Inside, the home boasts three bedrooms, three full baths, and an office/bonus room-a layout that accommodates families and guests alike. The great room features a cozy fireplace with gas logs, while the formal dining room and eat-in kitchen (complete with custom cabinets, granite countertops, and ceramic tile flooring) cater to both everyday living and entertainment. Real hardwood floors grace the additional levels, adding warmth and elegance. The luxurious primary bedroom suite beckons with vanity, a separate shower, and a walk-in Jacuzzi tub-a true retreat. Practical elements include a practically finished basement room with a brick fireplace, a workshop, and ample storage. The detached three-car garage, complete with attic storage, ensures convenience. And for peace of mind, a full house generator stands ready to provide uninterrupted comfort. Whether you're drawn to the location, the thoughtful design, or the serene surroundings, this Marietta gem awaits its fortunate new owner.
#10643801

Marietta

852 Hickory DR SW

3 Beds

3 Baths

N/A

$475,000

MLS#: 10643801

Location, location, location!!! Welcome to 305 Brookwood Dr - an updated mid-century ranch just minutes from the vibrant shops, dining, and events of Marietta Square. This charming home combines classic character with modern updates, offering comfortable living inside and out. The main level features a bright, open layout with stylish finishes and warm hardwoods throughout. Step out back to enjoy a view of your entire back yard from a large deck with stair access to below. Downstairs, you'll find a finished basement complete with its own full bathroom-perfect for a roommate, in-law suite, or flexible bonus space. Outside, enjoy the peaceful view of a running creek that borders the property. A portion of the yard is fully fenced, making it ideal for pets to roam safely. Whether you're relaxing on the back patio or exploring the nearby square, this home offers the perfect blend of privacy, convenience, and charm. Don't miss your chance to own this move-in ready gem in one of Marietta's most desirable locations! Motivated seller, bring an offer!
#10643717

Marietta

305 Brookwood

3 Beds

3 Baths

1,618 Sq.Ft.

$519,900

MLS#: 10643717

Nestled within the City Limits of Marietta, this meticulously crafted custom home offers an exceptional living experience. Situated on a private one-acre lot, it provides both tranquility and space for outdoor enjoyment. The quality craftsmanship is evident throughout, with recent upgrades including a new roof, gutters, and a newer HVAC system. Inside, the home boasts three bedrooms, three full baths, and an office/bonus room—a layout that accommodates families and guests alike. The great room features a cozy fireplace with gas logs, while the formal dining room and eat-in kitchen (complete with custom cabinets, granite countertops, and ceramic tile flooring) cater to both everyday living and entertainment. Real hardwood floors grace the additional levels, adding warmth and elegance. The luxurious primary bedroom suite beckons with vanity, a separate shower, and a walk-in Jacuzzi tub—a true retreat. Practical elements include a practically finished basement room with a brick fireplace, a workshop, and ample storage. The detached three-car garage, complete with attic storage, ensures convenience. And for peace of mind, a full house generator stands ready to provide uninterrupted comfort. Whether you’re drawn to the location, the thoughtful design, or the serene surroundings, this Marietta gem awaits its fortunate new owner.
#7679287

Marietta

852 Hickory Drive SW

3 Beds

3 Baths

2,952 Sq.Ft.

$475,000

MLS#: 7679287

Welcome Home! Discover this charming Ranch-style home tucked away in one of East Cobb’s most established and desirable communities. Situated on a beautiful corner lot, this property has been newly renovated and features a brand-new roof with a 10-year transferable warranty. From the moment you arrive, you’ll be captivated by the spacious front porch, perfect for rocking chairs and enjoying your morning coffee. The exterior was professionally painted in August 2025, giving the home fresh curb appeal. Step inside to a welcoming foyer that opens to a cozy family room and an open-concept floor plan with seamless views into the kitchen and dining area. The fully renovated kitchen boasts luxury quartz countertops, a stylish new backsplash, all-new stainless steel appliances, a modern vent hood, and updated light fixtures throughout.The primary suite on the main level is bright and spacious, offering a fully renovated bathroom with a quartz double vanity, a beautifully tiled shower, and new lighting. Upstairs, you’ll find two additional large bedrooms, while all bathrooms including the powder room have been tastefully updated.Enjoy outdoor living on the walk-out deck, ideal for patio furniture and entertaining guests. The large, level backyard is perfect for kids, pets, and family gatherings. All of this in an amazing location,  just minutes from Marietta Square, close to shopping, dining, and in a top-rated school district (Pope High School).
#7681484

Marietta

2853 Wendwood Drive

3 Beds

2 Baths

1,542 Sq.Ft.

$449,900

MLS#: 7681484

Location, location, location!!! Welcome to 305 Brookwood Dr — an updated mid-century ranch just minutes from the vibrant shops, dining, and events of Marietta Square. This charming home combines classic character with modern updates, offering comfortable living inside and out. The main level features a bright, open layout with stylish finishes and warm hardwoods throughout. Step out back to enjoy a view of your entire back yard from a large deck with stair access to below. Downstairs, you'll find a finished basement complete with its own full bathroom—perfect for a roommate, in-law suite, or flexible bonus space. Outside, enjoy the peaceful view of a running creek that borders the property. A portion of the yard is fully fenced, making it ideal for pets to roam safely. Whether you're relaxing on the back patio or exploring the nearby square, this home offers the perfect blend of privacy, convenience, and charm. Don't miss your chance to own this move-in ready gem in one of Marietta's most desirable locations! Motivated seller, bring an offer!
#7681421

Marietta

305 Brookwood Drive SW

3 Beds

3 Baths

1,618 Sq.Ft.

$519,900

MLS#: 7681421

Located in the heart of Marietta, this charming brick front property blends comfort, convenience, and inviting spaces throughout. Natural light fills the main level, showcasing an open layout with plenty of room for both everyday living and effortless entertaining. The heart of the home is the kitchen, flowing seamlessly into the living and dining areas with beautiful hardwood floors and a cozy fireplace. 

A large back deck extends your living space outdoors, offering a private spot for morning coffee, outdoor dining, or hosting friends.

Upstairs, the primary suite is your personal sanctuary. Bright and inviting, it offers plenty of room to unwind, a walk-in closet to keep life organized, and a spacious bathroom with his-and-hers vanities, a large shower, and a soaking tub. An additional bedrooms and a full bath complete the upper level, along with a laundry area that makes everyday life effortless.

The lower level provides flexibility to fit your lifestyle. A third bedroom with a full bath and exterior access is perfect for guests, a home office, a gym, or a playroom.

All of this is just minutes from Marietta Square, where dining, shopping, festivals, and community events are at your doorstep, with easy access to schools, trails, and major highways.

477 Williamson Street is more than a townhouse. It’s a place where comfort meets convenience, and every space feels like home. Come see it and imagine your next chapter beginning here.
#7681660

Marietta

477 Williamson Street SE

3 Beds

3 Baths

2,332 Sq.Ft.

$420,000

MLS#: 7681660

Welcome to this beautiful, well-maintained, move-in ready home in sought after Chastain Glen subdivision! You'll be warmly welcomed by the grand foyer, and gleaming cherry hardwood floors, leading into the two-story great room that offers a cozy fireplace, and an amazing view to the level backyard made for relaxing or entertaining! Mealtime will be a treat in the separate dining room or eat-in kitchen, featuring granite countertops, tile backsplash, an oversized island and walk-in pantry. Upstairs you'll find all 3 bedrooms and separate laundry. The primary bedroom features a freshly renovated primary bath with dual vanity, garden tub, and a separate shower with subway tile and a custom glass door. Great community with swim/tennis and a playground. Easy interstate access, near grocery, shopping, restaurants. NEW HVAC (AC replaced May 2023, Furnace Jan. 2024), NEW WATER HEATER (4yrs old), Transferable Termite Bond in place. PLEASE WEAR SHOE COVERS DURING SHOWINGS. **Seller works from home and coordinates her meeting schedule around confirmed showings. Please be mindful of the scheduled time - late or early arrivals may need to be rescheduled. Thank you for understanding!
#10641142

Marietta

3416 Chastain Glen LN NE

3 Beds

2 Baths

2,480 Sq.Ft.

$455,000

MLS#: 10641142

Welcome to this bright and inviting home featuring a NEW Roof, modern kitchen with granite countertops, gas range, pantry, and a sunny eat-in breakfast area, complemented by a separate dining room for larger gatherings. The spacious family room boasts a cozy fireplace and charming bay window. Enjoy three comfortable bedrooms, two full baths, and a flexible bonus room that's perfect for a home office, playroom, or den. Step outside to a private patio overlooking the expansive backyard-ideal for entertaining, outdoor play, or quiet relaxation. Additional highlights include abundant storage, a two-car garage with new garage doors, and a prime East Cobb location with excellent schools.
#10643910

Marietta

4709 Trickum RD NE

3 Beds

2 Baths

1,854 Sq.Ft.

$449,000

MLS#: 10643910

Professional Photos Coming Soon!   
Charming 4-Bedroom, 3.5-Bath Home Filled With Character! Welcome to this beautifully maintained home in the sought-after Grovemeade neighborhood, where charm, character, and natural light fill every room. Nestled on a gorgeous lot with mature landscaping, this home invites you in with its welcoming rocking-chair front porch and timeless curb appeal.

Step inside to a spacious living room featuring a cozy fireplace and hardwood floors that flow throughout the main level. The large formal dining room, complete with built-in shelving, offers the perfect space for hosting gatherings. The bright eat-in kitchen includes granite countertops, and stainless steel appliances.

The primary bedroom on the main level provides convenience and comfort with an ensuite bath featuring a tile shower and dual vanity. Upstairs, two bedrooms share a classic Jack-and-Jill bath, while an additional bedroom and full hall bath offer even more space for family or guests.

From the living room, step out onto the oversized back deck overlooking the peaceful, private backyard—ideal for relaxing or entertaining.

The terrace level expands your living space with an oversized family/media room with built-ins and glass doors leading to a large patio. This level also features a half bath with laundry, a dedicated office with a built-in workspace for two, and an additional flex room perfect for hobbies, fitness, or storage. A large two-car garage completes this impressive home.

This home has been exceptionally cared for and thoughtfully improved, featuring a NEW hot water heater, newer HVAC systems, newer windows, and a newer roof—providing peace of mind and long-term value.

Nestled on a quiet street in one of East Cobb’s most desirable locations, this home offers unmatched convenience in an incredible community. You’re just a short walk to the neighborhood pool and tennis courts—available through an optional HOA with no restrictions. Enjoy close proximity to The Battery, Braves Stadium, great shopping, popular restaurants, and major highways for an easy commute. Nature lovers will appreciate the easy access to Terrell Mill Park, the scenic Sope Creek Paper Mill Ruins, and the Chattahoochee River, all only minutes away. This active community hosts fun seasonal events creating a warm, connected neighborhood feel.

With its fantastic layout, charm, and prime location, this home delivers space, character, and flexibility in all the right ways.
#7681374

Marietta

621 Windgrove Road SE

4 Beds

3 Baths

2,635 Sq.Ft.

$545,000

MLS#: 7681374

 - property

Send a message

Message successfully sent.

Your message

What is 3 + 4 ?

Reason for contacting?

Sign Out

Virtual Assistant

Would you like to take the next step with this property? We can help you schedule a showing or virtual tour, or send you more details.

Yes, I would like more information.

Thank You for Your Reply, One of Our Agents will contact you as soon as possible

No, maybe later.

Thank you, you can always contact me via email, phone number or through the contact form.

Realhub AI

Lucy - Your AI-Powered Realtor

Update Your Temporary Password

Personalize your search

Enter your email and we'll notify you immediately when new listings match what you're looking for.

or enter email address

Already have an account ? Login here

Continue your home search

Already have an account ? Login here

We use cookies

We use cookies primarily for analytics to enhance your experience. By accepting, you agree to our use of these cookies. You can manage your preferences or learn more about our cookies policy.