Contemporary, European, Modern, Traditional
227 Traditions Drive
Alpharetta , GA 30004
MLS#: 7534851
$4,199,999

Property
Beds
7
Full Baths
7
1/2 Baths
2
Year Built
2026
Sq.Footage
12,200
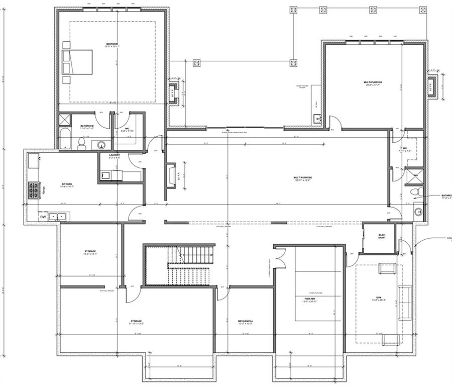
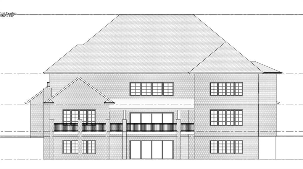
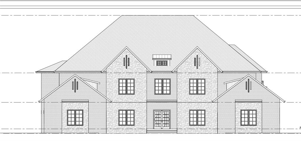
Scheduled to be completed May 2026.This remarkable new construction home, is situated within the prestigious Echelon Golf Club—home to one of Georgia’s finest golf courses. Featuring an impressive 7 bedrooms and 9 bathrooms, offering a total of 12,200 square feet of opulent living space, with 7,758 square feet on the main and upper levels, and 4,442 square feet of beautifully finished lower-level space. The premium golf course acre lot, boasts breathtaking golf course views that truly elevate your lifestyle. For the auto enthusiast, this home includes a spacious 6-car garage, ensuring ample room for your collection. Crafted by the esteemed Alexandria Homes, this turn-key residence combines stunning design with high-quality construction, featuring only the finest materials, energy-efficient aluminum windows, and advanced spray foam insulation to help you save on utility costs. As you enter through the grand 20-foot foyer, you’re greeted by a sense of majesty that continues throughout the home. To your left, a sophisticated office provides a perfect workspace, while to your right, an elegant dining room awaits. The expansive great room showcases soaring 20-foot ceilings, a captivating fireplace, and built-in shelving, flowing beautifully into the spacious bar and gourmet kitchen with custom cabinetry, an impressive island table, and top-of-the-line appliances—all complemented by a butler’s pantry for effortless entertaining. Step seamlessly into the cozy keeping room, which features its own fireplace and opens onto the terrace, creating a perfect setting for year-round entertaining. The master suite, also located on the main level, is your personal sanctuary, complete with a sitting area, a warm fireplace, and a spa-like bathroom with a generous walk-in shower, a lavish soaking tub, and a huge custom closet with built-in and island designed for ultimate organization and luxury. Ascend to the upper level where you’ll find a loft space overlooking the court yard, along with four generously sized en-suite bedrooms equipped with their own bathrooms, and large walk in closets with custom built-in closets—all designed for comfort and privacy. Along with bonus room that can be a second office or media room. Elevator access on all 3 levels including the upper level. The lower level is an entertainer’s dream, featuring a theater room for movie nights, a fully spacious gym, and an expansive family room with a fireplace and built in shelving, all leading directly to the enchanting salt water and heated pool and spa, and terrace area, completed with a fireplace and grill—perfect for summer gatherings. This architectural marvel is designed with modern living in mind, boasting laundry rooms on every level and tray ceilings adorned with LED lighting throughout, ensuring a bright and airy ambiance. An elevator provides effortless access to all levels of the home, enhancing convenience for everyone. This custom home can be built in approximately 10-12 months. With five custom new construction homes currently available within this gated community by Alexandria Homes. You’ll can also enjoy access to top-tier public and private schools, along with beautiful horse country nearby and easy access to downtown Alpharetta and Avalon Shopping Center. Don't miss this unparalleled opportunity to claim your place in this exquisite community. There is still time to customize! Call Today! Don’t miss the chance to make this luxurious estate your own. Schedule your private tour today and discover a new standard of living at Echelon Golf Club! Scheduled to be completed May 2026.
Features & Amenities
Interior
-
Other Interior Features
Eat-in Kitchen, Pantry, Kitchen Island, Double Vanity, Elevator, Recessed Lighting, Smart Home, Tray Ceiling(s), Walk-In Closet(s), Wet Bar
-
Total Bedrooms
7
-
Bathrooms
7
-
1/2 Bathrooms
2
-
Above Grade Finished Area
7758.0
-
Basement YN
YES
-
Cooling YN
YES
-
Cooling
Ceiling Fan(s), Central Air, Electric
-
Fireplace YN
YES
-
Heating YN
YES
-
Heating
Hot Water, Natural Gas
-
Main Level Bedrooms
1
-
Pet friendly
N/A
Exterior
-
Garage
Yes
-
Garage spaces
6
-
Construction Materials
Brick, Spray Foam Insulation, Stone
-
Other Exterior Features
Balcony, Gas Grill, Lighting, Private Entrance, Private Yard
-
Parking
Garage, Garage Door Opener, Garage Faces Side, Kitchen Level
-
Patio and Porch Features
Covered, Patio, Rear Porch, Terrace
-
Pool
Yes
-
Pool Features
Electric Heat, Heated, In Ground, Pool/Spa Combo, Private, Salt Water
-
View
Golf Course, Trees/Woods
Area & Lot
-
Lot Features
Back Yard, Front Yard, Landscaped, Private
-
Lot Size(acres)
0.94
-
Property Type
Residential
-
Property Sub Type
Single Family Residence
-
Architectural Style
Contemporary, European, Modern, Traditional
Price
-
Sales Price
$4,199,999
-
Tax Amount
2521.0
-
Sq. Footage
12, 200
-
Price/SqFt
$344
HOA
-
Association
YES
-
Association Fee
$113
-
Association Fee Frequency
Monthly
-
Association Fee Includes
N/A
School District
-
Elementary School
Macedonia
-
Middle School
Creekland - Cherokee
-
High School
Creekview
Property Features
-
Stories
3
-
Foundation Details
Concrete Perimeter
-
Sewer
Septic Tank, Other
-
Tax Lot
49
-
Water Source
Public
Schedule a Showing
Showing scheduled successfully.
Mortgage calculator
Estimate your monthly mortgage payment, including the principal and interest, property taxes, and HOA. Adjust the values to generate a more accurate rate.
Your payment
Principal and Interest:
$
Property taxes:
$
HOA fees:
$
Total loan payment:
$
Total interest amount:
$
Location
County
Cherokee
Elementary School
Macedonia
Middle School
Creekland - Cherokee
High School
Creekview
Listing Courtesy of DeJah Watson , Atlanta Communities
RealHub Information is provided exclusively for consumers' personal, non-commercial use, and it may not be used for any purpose other than to identify prospective properties consumers may be interested in purchasing. All information deemed reliable but not guaranteed and should be independently verified. All properties are subject to prior sale, change or withdrawal. RealHub website owner shall not be responsible for any typographical errors, misinformation, misprints and shall be held totally harmless.

FOUNDER
GeorgiaSandbox
Call Georgia today to schedule a private showing.

* Listings on this website come from the FMLS IDX Compilation and may be held by brokerage firms other than the owner of this website. The listing brokerage is identified in any listing details. Information is deemed reliable but is not guaranteed. If you believe any FMLS listing contains material that infringes your copyrighted work please click here to review our DMCA policy and learn how to submit a takedown request.© 2024 FMLS.
