Property
Beds
3
Full Baths
3
1/2 Baths
1
Year Built
2025
Sq.Footage
3,117
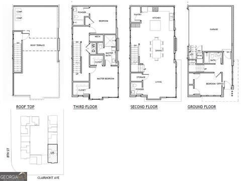
Turn off 8th Street and glide through the motor court into your private two-car garage, the beginning of something special. Inside, the first floor welcomes you with a bright, modern foyer, a full bath, and a spacious bedroom that doubles beautifully as a home office, complete with two closets for effortless organization. Ascend to the open concept main level where luxury meets design. The kitchen is a showstopper featuring one-of-a-kind marble countertops, two-tone cabinetry, a generous island for entertaining, walk-in pantry, and a sleek dry bar with a built-in wine fridge. Fulgor stainless steel appliances anchor the space, complemented by designer lighting and hardwood floors that flow seamlessly throughout. The dining area sets the stage for your first dinner party, while the elevated living room framed by corner windows offers striking views of the PDK runways below. A discreet half bath adds an extra layer of convenience for guests, and a large walk-in storage closet near the staircase ensures everything you need has a stylish place to stay tucked away. On the third level, the indulgence continues with an ensuite secondary bedroom, hallway laundry, and an elegant primary suite boasting dual walk-in closets with custom shelving and a spa-like bath featuring a double vanity, water closet, and oversized walk-in shower. And just when you think you've seen it all, the rooftop terrace steals the show. Stretching the full length of the home, it is finished in lush turf with panoramic views of Stone Mountain and the runway lights of Peachtree-DeKalb Airport. Perfect for sunset cocktails or midnight conversations, a gas line awaits your custom outdoor kitchen upgrade. Beyond the home, The Foxtrot offers an enviable lifestyle designed for those who move to their own rhythm. Surrounded by six parks and the sprawling 33-acre Ashford Park Reserve, outdoor adventures are steps away. Minutes from Emory University, top hospitals, major highways, and an array of dining and entertainment options, you'll enjoy the best of urban living with the ease of a connected community. Experience luxury living at its finest at The Foxtrot, where prime location, exceptional craftsmanship, and unparalleled design converge to create a lifestyle unlike any other. At The Globemaster, every landing feels like a grand arrival.
Features & Amenities
Interior
-
Other Interior Features
Kitchen Island, Pantry, Double Vanity, Walk-In Closet(s), High Ceilings
-
Total Bedrooms
3
-
Bathrooms
3
-
1/2 Bathrooms
1
-
Above Grade Finished Area
3117.0
-
Basement YN
NO
-
Cooling YN
YES
-
Cooling
Central Air, Electric, Zoned, Ceiling Fan(s)
-
Heating YN
YES
-
Heating
Electric
-
Pet friendly
N/A
Exterior
-
Garage
Yes
-
Garage spaces
2
-
Construction Materials
Brick
-
Other Exterior Features
Other
-
Parking
Attached, Garage
-
Patio and Porch Features
Patio
-
Pool
No
-
View
City
Area & Lot
-
Lot Features
Corner Lot, Level, City Lot
-
Lot Size(acres)
1.5
-
Property Type
Residential
-
Property Sub Type
Townhouse
-
Architectural Style
Contemporary, European
Price
-
Sales Price
$799,000
-
Sq. Footage
3, 117
-
Price/SqFt
$256
HOA
-
Association
YES
-
Association Fee Frequency
N/A
-
Association Fee Includes
N/A
School District
-
Elementary School
Ashford Park
-
Middle School
Chamblee
-
High School
Chamblee
Property Features
-
Stories
3
-
Foundation Details
Slab
-
Sewer
Public Sewer
-
Water Source
Public
Schedule a Showing
Showing scheduled successfully.
Mortgage calculator
Estimate your monthly mortgage payment, including the principal and interest, property taxes, and HOA. Adjust the values to generate a more accurate rate.
Your payment
Principal and Interest:
$
Property taxes:
$
HOA fees:
$
Total loan payment:
$
Total interest amount:
$
Location
County
DeKalb
Elementary School
Ashford Park
Middle School
Chamblee
High School
Chamblee
Listing Courtesy of None
RealHub Information is provided exclusively for consumers' personal, non-commercial use, and it may not be used for any purpose other than to identify prospective properties consumers may be interested in purchasing. All information deemed reliable but not guaranteed and should be independently verified. All properties are subject to prior sale, change or withdrawal. RealHub website owner shall not be responsible for any typographical errors, misinformation, misprints and shall be held totally harmless.

FOUNDER
GeorgiaSandbox
Call Georgia today to schedule a private showing.

* Listings on this website come from the FMLS IDX Compilation and may be held by brokerage firms other than the owner of this website. The listing brokerage is identified in any listing details. Information is deemed reliable but is not guaranteed. If you believe any FMLS listing contains material that infringes your copyrighted work please click here to review our DMCA policy and learn how to submit a takedown request.© 2024 FMLS.
