Property
Beds
5
Full Baths
3
1/2 Baths
1
Year Built
2015
Sq.Footage
5,025
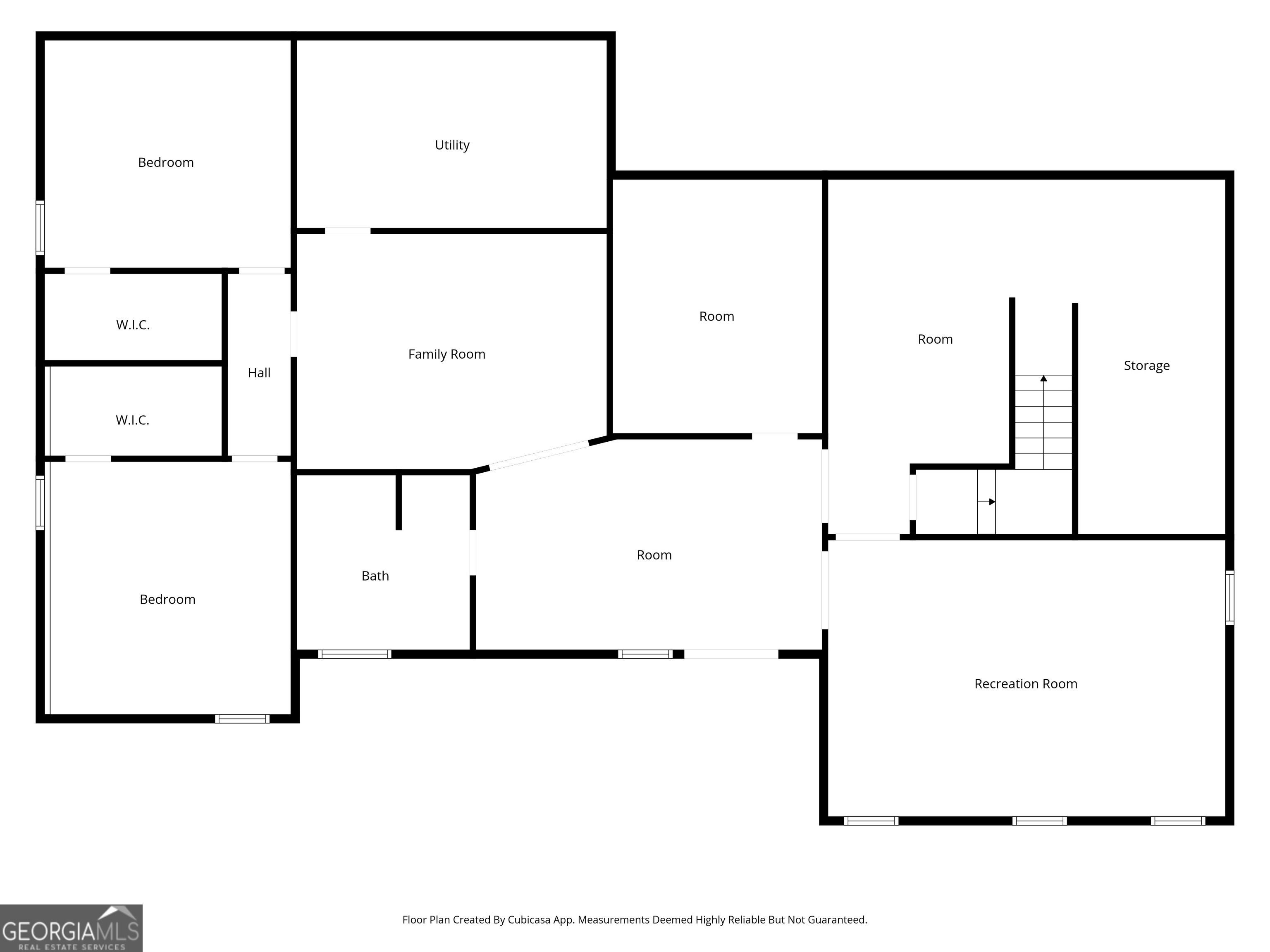
Welcome to Ball Ground, Georgia! This custom-built 5 bedroom, 3.5 bathroom ranch on a finished daylight basement sits on 5.95 acres and offers the perfect balance of space, privacy, and convenience. Built in 2015, the home features a split-bedroom design with the master suite, laundry, and half bath on one wing, and two spacious bedrooms with a full bath on the other. The open kitchen overlooks the vaulted great room, making it the heart of the home for gatherings and entertaining. There is also potential to finish a room above the garage for even more living space! The finished basement adds incredible versatility with two additional bedrooms, a full bath, a large living room, and a home office-perfect for multigenerational living, guests, or a private workspace. Outdoor living shines with a rocking chair covered front porch, a large back deck that's half covered and half uncovered, plus a screened patio area underneath. The fenced backyard is ideal for pets, play, or future expansions. The property itself combines open usable yard space with hardwoods in the back, giving you room to garden, ride, hike, or hunt right at home. A true standout feature is the 35'x55' (1,925 sq. ft.) three-bay shop, built in 2018 with 12'x12' roll-up doors, water, and power-ideal for a workshop, home business, or storage for RVs, boats, and toys. All of this with no HOA, county-only taxes, and walking distance to downtown Ball Ground, yet only minutes from shopping, dining, wineries, and I-575 for easy commuting. Peaceful country living with room to spread out-right where you want to be!
Features & Amenities
Interior
-
Other Interior Features
Breakfast Bar, Pantry, Entrance Foyer, Double Vanity, High Ceilings, Tray Ceiling(s), Walk-In Closet(s), Master Downstairs
-
Total Bedrooms
5
-
Bathrooms
3
-
1/2 Bathrooms
1
-
Above Grade Finished Area
2645.0
-
Basement YN
YES
-
Cooling YN
YES
-
Cooling
Ceiling Fan(s), Central Air, Electric
-
Fireplace YN
YES
-
Heating YN
YES
-
Heating
Forced Air, Natural Gas
-
Main Level Bedrooms
3
-
Pet friendly
N/A
Exterior
-
Garage
Yes
-
Garage spaces
2
-
Construction Materials
Concrete
-
Other Exterior Features
Other
-
Parking
Garage
-
Patio and Porch Features
Deck, Patio
-
Pool
No
Area & Lot
-
Lot Features
Level, Private
-
Lot Size(acres)
5.95
-
Property Type
Residential
-
Property Sub Type
Single Family Residence
-
Architectural Style
Ranch
Price
-
Sales Price
$1,099,900
-
Tax Amount
6809.0
-
Sq. Footage
5, 025
-
Price/SqFt
$218
HOA
-
Association
NO
School District
-
Elementary School
Ball Ground
-
Middle School
Creekland
-
High School
Creekview
Property Features
-
Stories
1
-
Accessibility Features
Accessible Doors, Accessible Full Bath
-
Sewer
Septic Tank
-
Water Source
Public
Schedule a Showing
Showing scheduled successfully.
Mortgage calculator
Estimate your monthly mortgage payment, including the principal and interest, property taxes, and HOA. Adjust the values to generate a more accurate rate.
Your payment
Principal and Interest:
$
Property taxes:
$
HOA fees:
$
Total loan payment:
$
Total interest amount:
$
Location
County
Cherokee
Elementary School
Ball Ground
Middle School
Creekland
High School
Creekview
Listing Courtesy of None
RealHub Information is provided exclusively for consumers' personal, non-commercial use, and it may not be used for any purpose other than to identify prospective properties consumers may be interested in purchasing. All information deemed reliable but not guaranteed and should be independently verified. All properties are subject to prior sale, change or withdrawal. RealHub website owner shall not be responsible for any typographical errors, misinformation, misprints and shall be held totally harmless.

FOUNDER
GeorgiaSandbox
Call Georgia today to schedule a private showing.

* Listings on this website come from the FMLS IDX Compilation and may be held by brokerage firms other than the owner of this website. The listing brokerage is identified in any listing details. Information is deemed reliable but is not guaranteed. If you believe any FMLS listing contains material that infringes your copyrighted work please click here to review our DMCA policy and learn how to submit a takedown request.© 2024 FMLS.
