Property
Beds
5
Full Baths
5
1/2 Baths
1
Year Built
2025
Sq.Footage
5,110
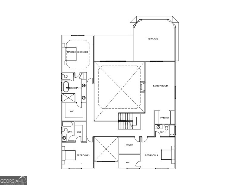
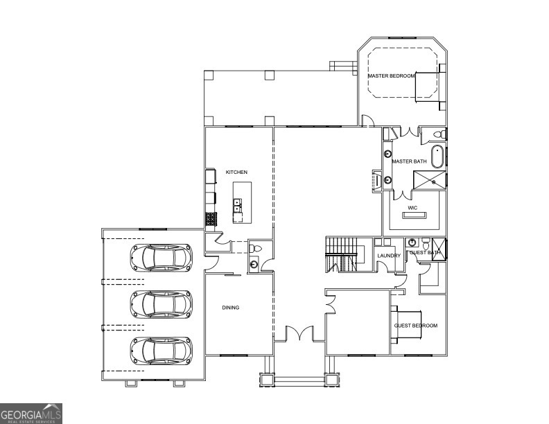
Discover your dream home in desirable McDonough, GA, at 1330 Upchurch Road. This custom-built new construction home by Splendid Development, a high-end luxury custom builder known for superior craftsmanship, is a design-forward masterpiece with a timeless open floor plan. The home's dramatic flair begins with a grand entrance foyer and it is complemented by high-end finishes, including a detailed trim package, built-ins, and soaring ceilings throughout.The main level features a great room with a fireplace that opens to an expansive outdoor living area, perfect for entertaining. The stunning chef's kitchen is a culinary masterpiece showcasing quartz countertops, a dramatic waterfall island, high end stainless steel appliances, custom cabinetry, and a spacious walk-in pantry. The first of the two luxurious owner's suites on the main level boasts a spa-inspired bath featuring a soaking tub flanked by dual quartz vanities, an oversized tile shower, and a massive walk-in closet. The second floor offers a spacious layout with a second owner's suite, four additional bedrooms, each with en suite bathroom and walk in closets. The second-level family room opens up to a beautiful covered upper porch, perfect for enjoying the outdoors from the second floor. The home also includes a three-car garage. This home is a must-see for anyone looking for the ultimate luxury living experience. With its prime location, superior craftsmanship, and stunning features, this home will not be on the market for long. Please note: Pictures and the virtual tour are from a previous build and do not represent the exact floor plan. *The Home is under construction, Completion date Late February 2026 *
Features & Amenities
Interior
-
Other Interior Features
Entrance Foyer, Double Vanity, High Ceilings, In-Law Floorplan, Soaking Tub, Tray Ceiling(s), Vaulted Ceiling(s), Walk-In Closet(s), Master Downstairs, High Speed Internet
-
Total Bedrooms
5
-
Bathrooms
5
-
1/2 Bathrooms
1
-
Above Grade Finished Area
5110.0
-
Basement YN
NO
-
Cooling YN
YES
-
Cooling
Electric, Heat Pump
-
Fireplace YN
YES
-
Heating YN
YES
-
Heating
Heat Pump, Electric
-
Main Level Bedrooms
2
-
Pet friendly
N/A
Exterior
-
Garage
No
-
Construction Materials
Brick
-
Parking
Garage
-
Pool
No
Area & Lot
-
Lot Features
Open Lot, Private
-
Lot Size(acres)
1.0
-
Property Type
Residential
-
Property Sub Type
Single Family Residence
-
Architectural Style
Brick 4 Side
Price
-
Sales Price
$949,990
-
Tax Amount
706.12
-
Sq. Footage
5, 110
-
Price/SqFt
$185
HOA
-
Association
NO
School District
-
Elementary School
Ola
-
Middle School
Ola
-
High School
Ola
Property Features
-
Stories
2
-
Sewer
Septic Tank
-
Water Source
Public
Schedule a Showing
Showing scheduled successfully.
Mortgage calculator
Estimate your monthly mortgage payment, including the principal and interest, property taxes, and HOA. Adjust the values to generate a more accurate rate.
Your payment
Principal and Interest:
$
Property taxes:
$
HOA fees:
$
Total loan payment:
$
Total interest amount:
$
Location
County
Henry
Elementary School
Ola
Middle School
Ola
High School
Ola
Listing Courtesy of None
RealHub Information is provided exclusively for consumers' personal, non-commercial use, and it may not be used for any purpose other than to identify prospective properties consumers may be interested in purchasing. All information deemed reliable but not guaranteed and should be independently verified. All properties are subject to prior sale, change or withdrawal. RealHub website owner shall not be responsible for any typographical errors, misinformation, misprints and shall be held totally harmless.

FOUNDER
GeorgiaSandbox
Call Georgia today to schedule a private showing.

* Listings on this website come from the FMLS IDX Compilation and may be held by brokerage firms other than the owner of this website. The listing brokerage is identified in any listing details. Information is deemed reliable but is not guaranteed. If you believe any FMLS listing contains material that infringes your copyrighted work please click here to review our DMCA policy and learn how to submit a takedown request.© 2024 FMLS.
